Byggelegepladsen Regnbuen

Læs projektets egen beskrivelse

Byggelegepladsen Regnbuen er en klub for større børn. Klubben har til huse i en villa fra 1950, med mange fine, bevarede detaljer, såsom egetræsparket og vinduesplader i marmor.
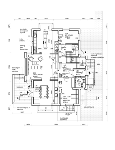
Inden renovering fremstod bygningen nedslidt, mørk, dårligt disponeret i forhold til brugernes behov, og med en ringe kontakt mellem inde- og udearealer. Der var store problemer med træk, kulde og dårlig luftkvalitet, og der var ikke niveaufri adgang til bygningen.
Opgaven bestod derfor i omdisponering af rumfunktioner, totalrenovering, herunder tag- og vinduesudskiftning, samt etablering af niveaufri adgang og mekanisk ventilation.
Der er lagt vægt på at løsninger og materialer skulle passe til bygningens oprindelige udtryk, samtidig med at der blev opnået bedre udnyttelse af huset.
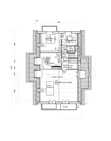
Dette indebærer bl.a. at klubbens to værksteder er flyttet ned i stueplan, med direkte adgang til det fri. Opholdsrum på 1. sal er ombygget så det bliver belyst fra tre sider, der er åbnet til kip, og der er sat nyt, specialdesignet værn på altanen, så børnene må gå derud.
Nye store vinduer og terrassedøre mod haven har forbedret dagslysforholdene og kontakten til udearealerne og den eksisterende terrasse. Der er også etableret et nyt udgangsparti fra værksted mod øst.
Ny åben elevator er sammenbygget med hovedindgangstrappen, ved forlængelse af trappemuren.
Vinduer, med højisolerende tre-lagsglas, er hvide med gående rammer i massivt FSC-certificeret teaktræ, for at bevare den oprindelige accentuering af faste og gående partier.
Tagstenene blev taget ned, afrenset og genoplagt på et nyt fast undertag med fuld isolering. Dette ville, med samme restlevetid som nye tagsten, være den mest bæredygtige løsning. Samtidigt var det smukkest at tagstenenes patina passede til den øvrige facade.
Renoveringen har resulteret i et hus der er dejligt at være i, med godt indeklima og gode lysforhold. Udefra fremtræder huset roligt, med smukke detaljer i form af kvalitetsvinduer og et tegltag der kan leve i endnu 50 år.

Parter bag projektet

Totalrådgiver: juul & hansen arkitekter aps
Bygherre: Hvidovre Kommune, Kultur-, Teknik-, Miljø- og Arbejdsmarkedsforvaltningen
Storentreprenør: Juul & Nielsen A/S

Yderligere information om projektet

http://www.juul-hansen.dk

Sted

Avedøre Tværvej 5
2650 Hvidovre

Realiseret

2014

Indstillingsår

2015

Anvendelse

Institution

Areal

1-500 m²