Villa Landluft

Et nedrivningstruet hus bliver til en bæredygtig pioner

Se mere

Villa Landluft

Et nedrivningstruet hus bliver til en bæredygtig pioner

Læs projektets egen beskrivelse

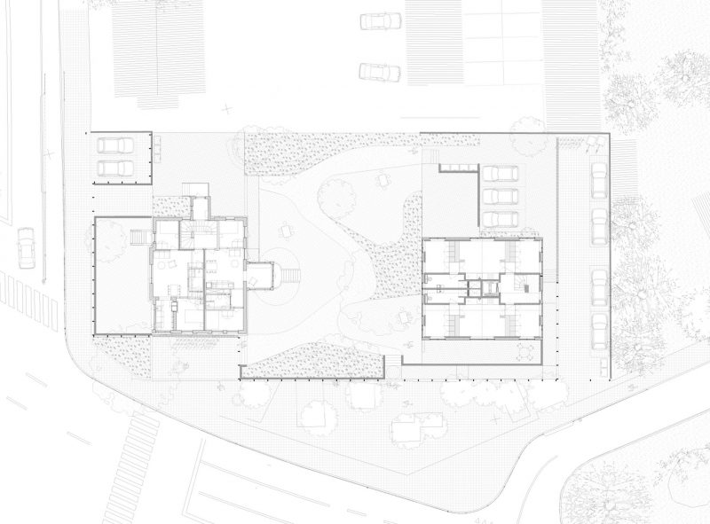
På hjørnet af Skovvangsvej og Nordre Ringgade, ved indkørslen til det centrale Aarhus, ligger Villa Landluft – en villa oprindeligt opført i 1897 med klare referencer til italiensk renæssancearkitektur. Med en placering lige der hvor byen går fra punkthuse til karréstruktur, står villaen som levn fra en svunden tid og agerer sidste bastion i overgangen fra forstadsmiljø tæt urbanitet. Projektet rejser derfor et grundlæggende spørgsmål: Hvordan reaktualiserer man en bygningstypologi, der efter mere end hundrede års byudvikling er blevet fremmedgjort for sine omgivelser både æstetisk, funktionelt og demografisk?

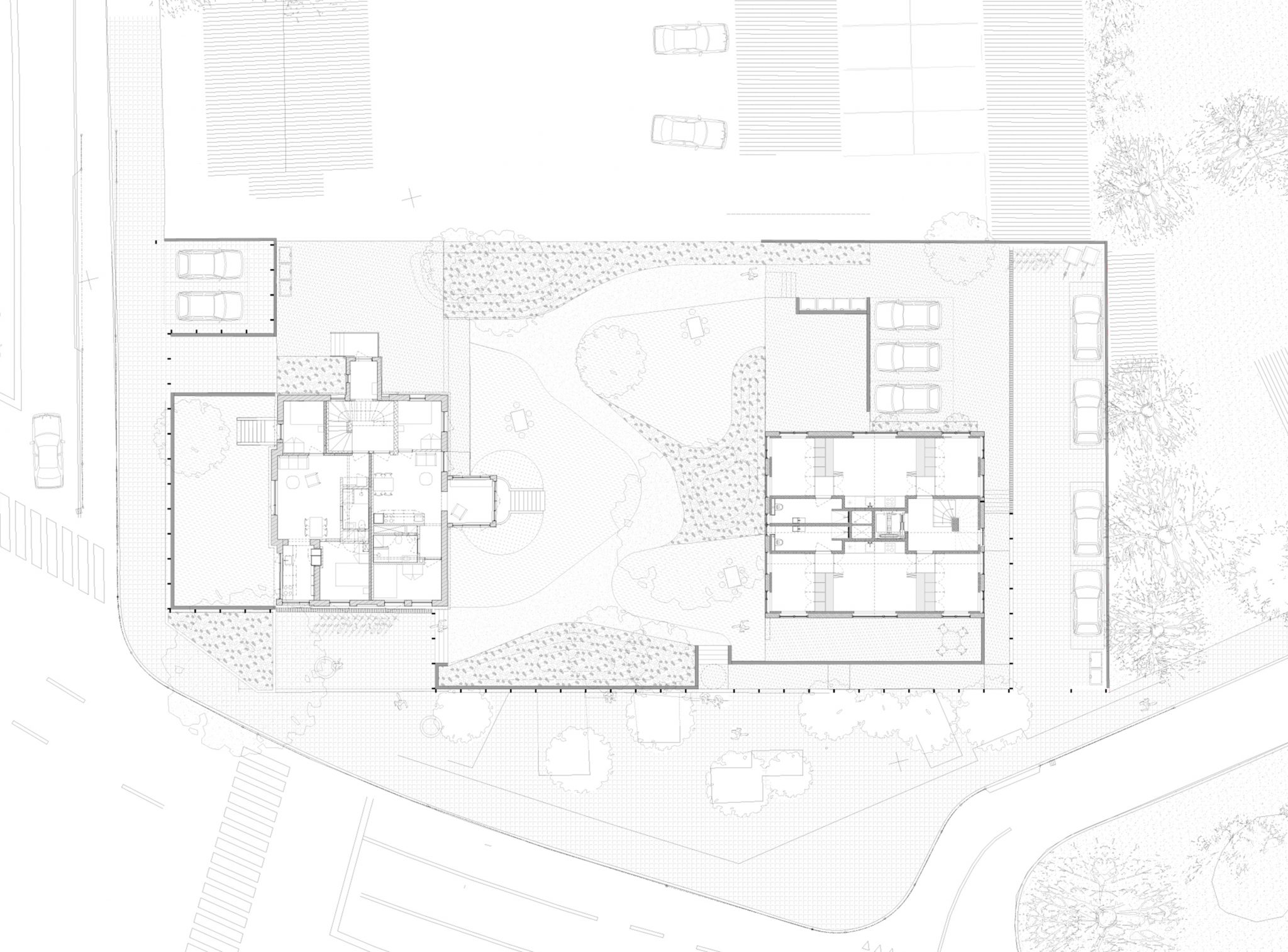
Projektet, der huser 11 lejligheder, består overordnet af to dele: En gennemgribende restaurering af Villa Landluft samt opførelsen af et tvillingehus, Villa Landluft II, der på grundens nordlige del spejler den eksisterende villa. Imellem de to bygninger er der anlagt en stor have, mens byens offentlige rum generøst er blevet integreret i matriklens periferi.

Transformationen af Villa Landluft både understreger de eksisterende arkitektur- og kulturhistoriske værdier og moderniserer bygningen, så den funktionelt og æstetisk indskriver sig tidssvarende i sin kontekst. Det nyopførte tvillingehus fremstår nutidigt og indgår naturligt i sine omgivelser. Samtidig optager det arkitektoniske grundelementer fra den eksisterende villa, og fungerer således som en mediator i overgangen fra den historiske villa til den omkringliggende virkelighed, der i sagens natur er radikalt anderledes fra dengang Villa Landluft blev opført som en af de første villaer i landlige omgivelser langt uden for Aarhus’ daværende centrum.

Den oprindelige villa er udefra karakteriseret ved klassiske kompositioner og et dekorativt murværk med elegante friser, relieffer og gesimser. Disse er bevaret, ligesom restaureringen af husets interiør peger tilbage mod dets oprindelige kvaliteter. Transformationen relancerer disse arkitektoniske markører. Nogle meget direkte, såsom sildebensparketgulvet og andre mere subtilt eksempelvis det markante gesimsbånd.

I dag står de to huse som udtryk for den tid, de hver især er bygget i. Samtidig afspejler de i dialog med hinanden og deres omgivelser, hvordan arkitektonisk værdi over tid er en flydende størrelse, der nænsomt kan både tilpasses og påvirke sin kontekst. Således indarbejder renoveringen af Villa Landluft og opførelsen af Villa Landluft II områdets to typologier og kvaliteter i ét sammenhængende projekt, der usentimentalt går i dialog med og om vores (bygnings)kulturarv.

Inspirerende ressourcetiltag

Restaureringen af den forfaldne villa bidrager positivt til omgivelserne på flere niveauer. Det er en klar forskønnelse af området, at huset ikke længere skæmmer kvarteret ved sin blotte, faldefærdige og tilgroede tilstedeværelse, men i stedet igen står som et stolt vartegn, som fortæller om områdets historie. Ud over den æstetiske værdiforøgelse er det en vigtig pointe i restaureringen, at Villa Landluft generøst åbner en del af sin matrikel op for omgivelserne. Projektet trækker på elementer fra den omkringliggende karréstruktur – der skabes privat rum mellem de to byggerier, men samtidig åbnes hele grundens sydøstlige hjørne op som et offentligt rum tilgængeligt for alle. Dette greb medfører også, at en del af facaden trækkes ud og integreres i byens væv, der smelter sammen med den private matrikel.

Brugskvaliteten bunder i en ærlig arkitektur, der identificerer arkitektoniske potentialer i den eksisterende bygnings historiske lag. De bliver udfoldet i renoveringen, så de fremstår med en elegant autenticitet, såsom det fascinerede sildebensparket, den karakteristiske stuk og de sirlige friser. De tilføjede elementer er robuste og afspejler nutidig byggeteknik. Når den grove puds, skarptskårne ståltrapper, galvaniserede ventilationsrør og sanselige silikatsten sættes sammen med de historiske elementer, opstår et uhøjtideligt, nysgerrigt udtryk. Villa Landluft tilbyder beboerne et hjem, der bærer traditioner med sig uden at forfalde til ren nostalgi for nostalgiens skyld.

Eksempelværdi

Det langsigtede mål med Villa Landluft er at danne præcedens for en bæredygtig restaureringsstrategi, der bevarer vigtige elementer af vores kulturarv uden at gå på kompromis med arkitektonisk kvalitet og økonomisk ansvarlighed. Før restaureringen havde Villa Landluft i flere år stået forfaldent hen, men rummede det til trods en markant historie og en række bevaringsværdige kvaliteter. Projektet demonstrerer, hvordan man revitaliserer et stykke kulturarv, der ellers stod til at blive revet ned.

Gennem studier af tidlige tegninger og fotografier er husets oprindelige elementer blevet kortlagt. Ud over dets forfald led Villa Landluft under de utallige ombygninger, der gennem tiden havde tilføjet vilkårligt placerede vinduer, klodsede karnapper og en overdimensioneret garage – alt sammen overflødige lag, der svækkede bygningens oprindelige karakter, præget af et stringent hierarki, der tillod de elegante ornamenter at stå tydeligt frem. Disse lag er skrællet væk, så de reelle kvaliteter står markant frem. Restaureringen er udført ud fra en generel overbevisning om, at tilføjede elementer ikke skal forsøge at efterligne eksisterende elementer. De skal derimod fremstå med samme integritet som de oprindelige og være udtryk for en nutidig byggeteknik, ligesom de oprindelige elementer i sin tid var udtryk for den daværende byggeskik. I sammenstillingen mellem eksisterende og nye materialer skabes dermed en ærlig collage, der lader hvert element og dets særegne karakter stå tydeligt frem. Stukken, der er nænsomt restaureret, optræder side om side med blotlagte ventilationsrør. De indlagte vådrumskernekerner i stuen og på 1. sal udnytter bevidst ikke rummets fulde højde, men er indskudte elementer, der tillader stukken at optræde uafbrudt i det oprindelige rums fulde længde. På den måde opleves husets lange historie og stukken gøres til et betydningsbærende element, der står som et stolt vidnesbyrd om Villa Landlufts fortid. Ligeledes er den tilføjede indvendige foring af ydervæggene ikke rumhøj, men optræder som et selvstændigt element, der blotlægger den øverste del af de oprindelige indervægge. Således lever huset op til moderne komfortkrav og anerkender samtidig det faktum, at Villa Landluft ikke er et nybyggeri.

Levende bygningskultur

Før sit forfald husede Villa Landluft én familie – i dag bebos den af fem familier i lejligheder på mellem 65 og 100 m2, ligesom tvillingehuset i øvrigt huser seks familier. En villa af den størrelse og karakter var ikke længere attraktiv grundet den geografiske placering, der gennem årene har ændret sig demografisk. En kosmetisk renovering havde derfor ikke kunne ændre på, at bygningen skulle rives ned og erstattes af etagebyggeri. Ved at splitte grundplanen op og indsætte flere rum, uden at gå på kompromis med generøse rum og en karakterfuld arkitektur, har transformationen gjort Villa Landluft attraktiv for en nye type beboere. Projektet er bygget af materialer, der i sig selv er sanselige og karakterfulde, men som også er prisbillige og findes i byggemarkeder. På den måde er omkostningerne blevet holdt nede, hvilket har tilladt at restaureringen af eksisterende elementer og tilføjelsen af nye, er kompromisløst udført. Samlet set er markedsværdien forøget betydeligt og projektet viser, hvordan en transformation kan skabe en særlig arkitektur og gøre et utidssvarende, nedrivningstruet hus bæredygtigt i både miljømæssig, økonomisk og kulturel forstand.

Parter bag projektet

lenschow & pihlmann
Landluft ApS
LB Consult
Gjerulff & Lassen
Isobyg

Yderligere information om projektet

https://www.pihlmann.dk/villa-landluft

Sted

Skovvangsvej 209
8200 Århus N

Realiseret

2020

Indstillingsår

2021, 2022

Jubilæumskategori

Bolig

Areal

501-5.000 m²