Respektfuld ombygning af typehus fra 1970´erne

Landskabet og udsigten blev inddraget i boligen

Se mere

Respektfuld ombygning af typehus fra 1970´erne

Landskabet og udsigten blev inddraget i boligen

Læs projektets egen beskrivelse

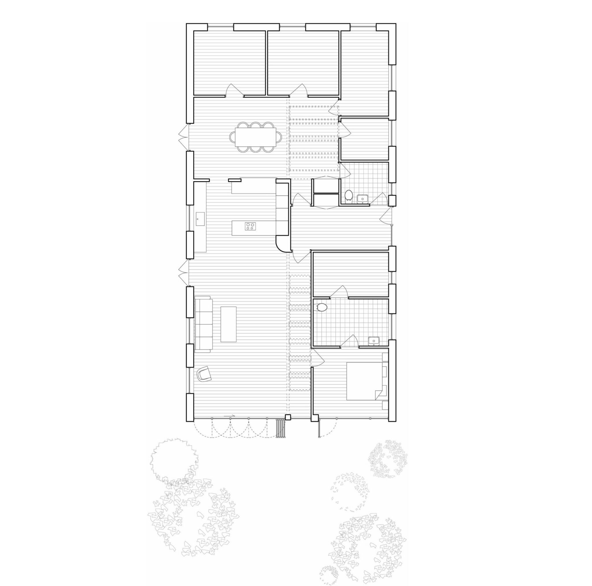
Familien ønskede en gennemgribende ombygning af opholdsrummene med fokus på et nyt stort opholdsrum med maksimalt udsyn og forbindelse til landskabet og skoven. I husets centrale rum blev der derfor udført loft til kip i stedet for de oprindelige lavloftede rum. Husets ene gavl blev omdannet til en glasfacade med en stor foldedør mod haven og der blev etableret et hul i væggen fra spisestuen så udsigten mod landskabet blev indrammet og trukket så langt ind i huset som muligt.

Husets øvrige rum og værelser blev bibeholdt som de var og gavlen ved ankomsten til boligen fremstår nærmest som det oprindelige. Derfor opdager man først ombygningen når man træder ind i stuen fra entréen og dette skaber en fin kontrast mellem det oprindelige hus og den nye ombygning.

Eksempelværdi

Projektet er et godt eksempel på hvordan man kan tilpasse eksisterende typehuse der ikke relaterer sig til konteksten og få dem til at omfavne de omkringliggende kvaliteter

Parter bag projektet

Arkitekt: Arkitektfællesskabet ApS

Bygherre: Camilla Larsen og Nikolaj Hermann

Yderligere information om projektet

https://www.danskeboligarkitekter.dk/projekt/respektfuld-ombygning-af-typehus-fra-1970erne

Sted

Pilevej
3480 Fredensborg

Fotos: Anders Aalekjær Grønbech

Realiseret

2024

Indstillingsår

2026

Anvendelse

Bolig

Areal

1-500 m²