80’er villa i Svendborg får nyt liv

Når små ændringer gør en stor forskel

Se mere

80’er villa i Svendborg får nyt liv

Når små ændringer gør en stor forskel

Læs projektets egen beskrivelse

Lotte og Bent havde købt et arkitekttegnet hus fra 1986.

Da de købte huset, havde de primært forelsket sig i husets beliggenhed og udsigten over sundet.

Det de så fik med i købet var – et tidstypisk 80’er-hus med tidstypiske overflader og byggestil.

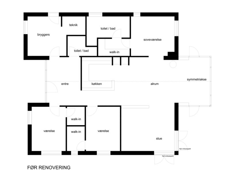
Midt i huset sidder et rytterlys og under rytterlyset er køkken/alrum samt husets entre placeret.

Netop det rytterlys giver et fantastisk lysindfald i boligen, men som huset stod der ved overtagelsen, var det samlede indtryk – at det lignede noget fra 80’erne. Nok lidt for meget.

Deres ønske var aldrig at huset skulle gennemgå vildt store ændringer, men de tidstypiske detaljer og overflader måtte gerne få et nutidigt udtryk.

Rytterlyset understreger den spejlings- og symmetriakse som huset er formet omkring.

Det er et markant træk.

Og med det rette blik – også et smukt træk.

Så i stedet for at ændre på rytterlyset, ryddede vi lidt op i rummet under det.

Vi forstærkede husets symmetri ved at:

– spejle den ene ganglinje, som så blev til to,

– ved at placere en køkkenø med den primære arbejdsplads i husets akse

– ved at integrere køkkenets højskabe i vægfladen, så hele rummet kunne opleves ubrudt i sin symmetri.

Tre små ændringer som forvandler oplevelsen af det symmetriske hus fuldstændigt – ganske enkelt fordi symmetrien får lov til at være lidt mere konsekvent til stede.

Resultatet blev, at rytterlyset nu fremstår smukkere og mere klart i bygningens design. Og fordi symmetrien i boligen er artikuleret lidt stærkere end før, synes rytterlyset ikke så tidstypisk som før.

Som en del af projektet har huset desuden fået nye trægulve i stedet for fliser; nye vinduespartier mod vandet, som giver mere dagslys og udsigt; samt to nye badeværelser, hvoraf den ene er udført i åben forbindelse med soveværelset, med toilettet bag sin egen dør.

Blik for brugerne

Alle huse har noget særligt, alle huse har noget tidstypisk, og alle bygherrer har nogle drømme.

I dette projekt har vi arbejdet med alle tre elementer for at skabe et projekt i balance.

Husets særlige greb er rytterlyset og symmetrien. Lotte og Bents ønske var, at de ubetinget kunne holde af dette greb.

Ved at forstærke symmetrien har vi forsøgt at gøre grebet mindre tidstypisk og mere universelt.

Lotte og Bent har herved fået et hus, som både er tro mod sit eget ophav og gavmildt i forhold til den hverdag, som huset danner ramme omkring.

De har fået et hus som giver dem rumlig velvære hver eneste dag.

Inspirerende ressourcetiltag

Jo mere vi bevarer, jo færre ressourcer bruger vi på ændringer. Men det kræver kærlighed at bevare vores bygninger. Og primært kræver det, at de som bruger bygningerne, holder af dem.

Projektet viser at små ændringer kan gøre en stor forskel. Det handler om at disse ændringer udføres med præcision og med blik for at forstærke bygningens eksisterende kvaliteter og identitet.

Eksempelværdi

Dette renoveringsprojekt viser en lidt anden vej gennem en ombygning.

Den væsentligste ændring var faktisk - at vi fandt en ny måde at se huset på.

En god renovering kræver ikke nødvendigvis store ombygninger, bare et skarpere blik for, hvad der er vigtigt.

Faglig kvalitet

Lotte og Bent vidste fra starten, at en grundig samtale om husets kvaliteter var nøglen til at forstå hvordan renoveringsprojektet skulle løses. Faglig kvalitet handler også om at give sig tid til at forstå sit hus, før man piller det fra hinanden.

Levende bygningskultur

Vores bygningskultur forandrer sig hele tiden, og måden vi ser og designer vores bygninger på, ændrer sig løbende. Vi kommer nok aldrig ud over, at der findes trends eller at nogle designs går af mode.

Vi kommer ikke til at lave noget, der er fuldstændigt tidløst, men forhåbentligt kan vi løbende ændre vores syn på trends og finde det smukke i det, der ellers er gået af mode.

Projektet forsøger at finde en vej gennem disse spørgsmål. Hvad skal der til for at gøre tidstypisk design mere universelt? Hvor lidt skal der til, før vi kan holde af de detaljer, der ikke passer ind i nutidens trends?

I dette projekt var svaret: find de egentlige kvaliteter og gør dem en lille smule bedre.

Parter bag projektet

Bygherre: Lotte Bloch og Bent Jensen

Arkitekt: FAVN ApS v/Henning Kongpetsak, arkitekt maa

Murer: Murermester Chano ApS

VVS: Søkrog VVS A/S

EL: Bakkegaard Thurø El-Service A/S

Yderligere information om projektet

www.favn.nu

Sted

Rantzausmindevej 125
5700 Svendborg

Fotos: FAVN ApS / Henning Kongpetsak

Realiseret

2020

Indstillingsår

2025

Anvendelse

Bolig

Areal

1-500 m²